Meet Jasper
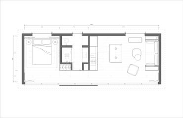
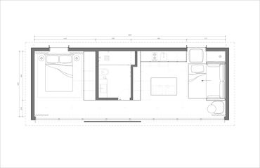
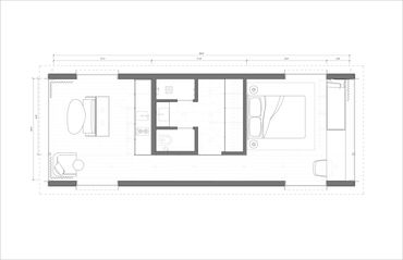
Prefabricated Luxury Modular Homes Built In Canada
Meet Jasper
Prefabricated Luxury Modular Homes Built In Canada
Prefabricated Luxury Modular Homes Built In Canada
Prefabricated Luxury Modular Homes Built In Canada
Lukacs Studios has spent years designing and engineering luxury prefabricated small homes. Whether you are looking to increase the speed of your new build on a lot or piece of land, construct a revenue property or build a vacation home, our luxury homes are designed and engineered to be built and delivered to site in a few months. We have selected durable, sustainable materials that allow us to construct long lasting, luxury homes that have been thoughtfully designed for families, couples or remote workers.






We stay in constant communication with our customers until the job is done. To get a free quote, or if you have questions or special requests, just drop us a line.
We use cookies to analyze website traffic and optimize your website experience. By accepting our use of cookies, your data will be aggregated with all other user data.